Containere Dormitor
Containerele dormitor sunt proiectate special pentru nevoile și confortul personalului șantierului, pentru taberele studențești și pensiuni.
Pot fi proiectate ca dormitoare individuale sau comune și pot fi instalate rapid pe șantier cu o pregătire minimă a locului de amplasare fiind proiectate și construite pentru utilizarea pe întreg parcursul anului.
Dimensiunea containerului de care aveți nevoie poate fi identificată în funcție de numărul de persoane care urmează să fie cazate.
Panourile sandwich construite special pentru pereți, acoperiș și podea asigură o izolare fonică și termică ridicată.
Containerele dormitor sunt pregătite și produse în funcție de nevoile dvs. din fabrica noastră, fiind gata de utilizare și transportate direct la site-ul dvs. Containerele dormitor prefabricate pot fi dotate cu baie (wc - duș), o bucătărie mică, paturi și dulapuri. Pot fi produse sub formă de monobloc, modulare și flat-pack.
Transportul ușor și instalarea rapidă, garantează un spațiu de dormit funcțional, sigur și confortabil, în câteva ore.
Se pot îmbina între ele pentru a forma spații mai mari, putând fi extinse sau reduse cu ușurință, în orice moment.
Containerele modulare dormitor pot fi stivuite vertical unul peste altul până la 3 niveluri și se pot interconecta pe orizontală la fața locului, pentru a forma spații mai mari.
Dimensiunea containerului de care aveți nevoie poate fi identificată în funcție de numărul de persoane care urmează să fie cazate.
Panourile sandwich construite special pentru pereți, acoperiș și podea asigură o izolare fonică și termică ridicată.
Containerele dormitor sunt pregătite și produse în funcție de nevoile dvs. din fabrica noastră, fiind gata de utilizare și transportate direct la site-ul dvs. Containerele dormitor prefabricate pot fi dotate cu baie (wc - duș), o bucătărie mică, paturi și dulapuri. Pot fi produse sub formă de monobloc, modulare și flat-pack.
Transportul ușor și instalarea rapidă, garantează un spațiu de dormit funcțional, sigur și confortabil, în câteva ore.
Se pot îmbina între ele pentru a forma spații mai mari, putând fi extinse sau reduse cu ușurință, în orice moment.
Containerele modulare dormitor pot fi stivuite vertical unul peste altul până la 3 niveluri și se pot interconecta pe orizontală la fața locului, pentru a forma spații mai mari.
Configurare de bază și echipamente
Cadru | Monobloc, profil din oțel zincat de 2 mm cu protecție anticorozivă |
Pereți | Panou sandwich PUR de 40 mm, alb |
Acoperiș | Oțel zincat de 0,5 mm Vată minerală de 100 mm Panou OSB de 20 mm |
Podea | Oțel zincat de 0,5 mm lVată minerală de 100 mm Panou OSB de 20 mm Foi din PVC |
Ușă - Fereastră | Ușă solidă din PVC 80cm x 200cm, albă Fereastra din PVC termopan 100cm x 100cm, alb |
Instalație electrică | 1 panou extern de conexiune 1 tablou electric 1 comutator de lumină 2 prize 220v 2 panouri led de 40W |
Dimensiuni standard
SKU | Lungime | Lăţime | Înălţime |
|---|---|---|---|
CDR03MON | 300 cm | 240 cm | 270 cm |
CDR04MON | 400 cm | 240 cm | 270 cm |
CDR05MON | 500 cm | 240 cm | 270 cm |
CDR06MON | 600 cm | 240 cm | 270 cm |
CDR07MON | 700 cm | 240 cm | 270 cm |
CDR08MON | 800 cm | 240 cm | 270 cm |
CDR09MON | 900 cm | 240 cm | 270 cm |
CDR12MON | 1200 cm | 240 cm | 270 cm |
Opțiuni de personalizare și echipamente suplimentare
Fiecare model de container este unic, cu specificații unice; prin urmare, aveți opțiunea de a alege între modelul standard sau un container personalizat, adaptat nevoilor dumneavoastră.
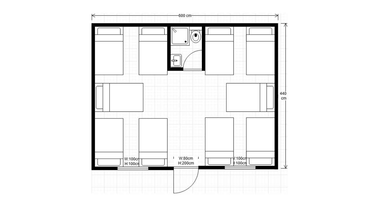
Exemple de planuri pentru podea
Solicitați ofertă acum !!!
- În siguranță
- Rezistent la intemperii
- Complet personalizabil
- Implementare rapidă
- Mobilitate încorporată
- Plug and Play






